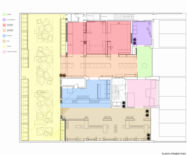
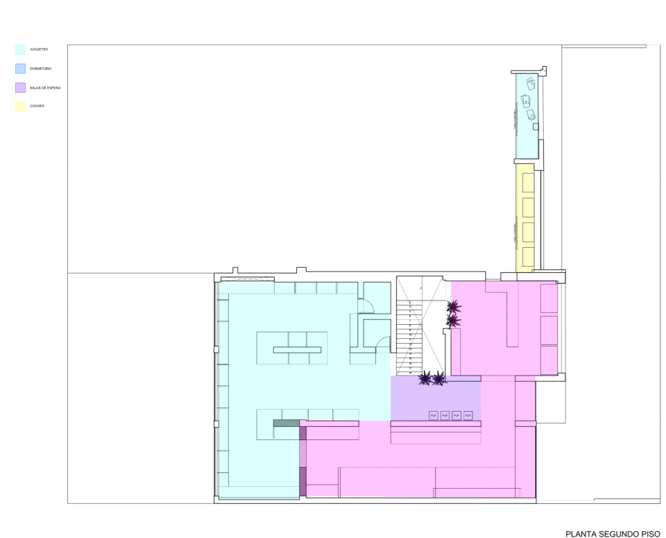
Proyecto para la nueva tienda y cambio de imagen de la cadena MUNDO BEBE. La idea principal gira en torno a la madre preocupada, así como los productos fuerza de la cadena. Se buscó un ambiente cómodo para las madres, con imágenes en blanco y negro que recordaran los buenos momentos y la ternura de sus hijos. Utilizamos esta monocromía para generar un equilibrio con los coloridos productos para niños que ahí se venden.
Imágenes blanco y negro por Diego Montoya
Imágenes arquitectura por Jasmin Bresani





































